Lot 89 Jennian Homes House & Land
Welcome to Lot 89 The Meadows - Your Dream Home in a Prime Location!
Turn-Key House and Land Package in The Meadows – Richmond. Secure with only 10% deposit — nothing more until completion!
Offered by Jennian Homes Nelson Bays, this stunning new build is available as a full turn-key package, making the buying process simple and stress-free. With just a 10% deposit, you can secure your future in one of Richmond’s most sought-after subdivisions — The Meadows, featuring the only titled land currently available.
Construction is starting soon, giving you the exciting chance to personalise your colour schemes and interior fit-out. But act fast — opportunities like this won’t last!
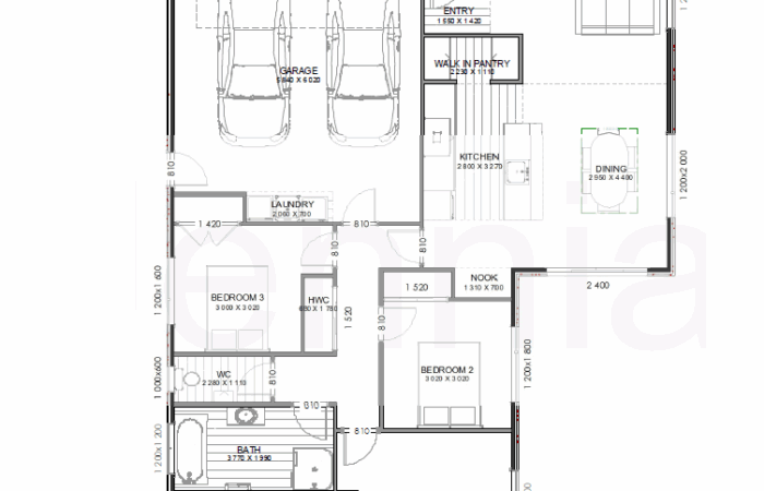
- 3 spacious bedrooms
- 2 stylish bathrooms
- Open-plan living with seamless flow from kitchen tolounge
- Double garage for secure, convenient parking
- Driveway and patio included
- Fully fenced section
Enjoy life just a short stroll from Rosedale Park, local café Sprig & Fern, and the Night ’n Day dairy — everything you need right at your doorstep.
Package price includes:
10-Year Master Build Guarantee
- Jennian Homes 36 Month Defects Warranty
- Jennian Home Completion Promise
- Inclusive patio and drive and full fencing
Home Area: 160m2
Bedrooms: 3
Bathroom: 2
Lounge/Dining: 1
Garage: 2
Section Area: 527m2
Price: $894,959
Contact Jennian Homes today at 03 544 4390 or email [email protected] to learn more.
Don’t miss out on this incredible opportunity to live in a prime location. Start building your new home today!
Scroll through and click on images to enlarge.

